ЧАСТИ БАЗОВОГО КОМПЛЕКТА | ПОЛНЫЙ КОМПЛЕКТ ДЛЯ ВСЕСЕЗОННОГО ИСПОЛЬЗОВАНИЯ
-
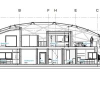
Архитектурные и инженерные технические чертежи
- Элевационный купол, планы этажей, план помещений, расчет площадей,
- Бетонные конструкции стен, конструкции всех слоев стен.
- Строительство фундаментов и полов.
- Внутренняя отделка стен, пола, плит для всех помещений.
- Концептуальная схема внутреннего и наружного освещения.
- Водопровод и отвод сточных вод. Схемы монтажа в помещениях.
- Отопление, вентиляция и кондиционирование воздуха, схемы монтажа.
-
КАРКАСНАЯ СИСТЕМА | СТРУКТУРНЫЙ ФАСАД
- Алюминиевая структурная рама и купольные соединители из стали с покрытием. Комплект для установки: Посредники, болты, крепежные элементы, все элементы маркировки и упаковки.
The construction carcass is produced from aluminum structural profile parts for structural facades, the parts include a sealing rubber, fixing kit. Steel connection hubs: STAR type – 4-5-6 directions, powder painted. A set of stainless steel rivets 6.4 mm for carcass construction.
Each geodesic dome structure is designed according to load calculations. This in turn ensures safety and durability. Our structural engineers can calculate the maximum loads of the equipment suspended by the geodesic dome of regional norms
ДОПОЛНИТЕЛЬНАЯ ВОЗМОЖНАЯ ДЕКОРАТИВНАЯ И ПРОТИВОПОЖАРНАЯ ЗАЩИТА
-
Базовый комплект | Двойные стеклянные панели | Стекло 6 мм – 18 мм ARGON90% – 44,1 EN2PLUS ламинированное
Треугольные окна стеклянные ламинированные пакетные детали для угловых крыш стеклянных фасадов. Внешнее стекло закаленное, термо-рамка имеет высокую влагостойкость, внутренние 2 слоя стекла ламинированные, безопасное стекло. SOLAR CONTROL Стеклопакет с термопокрытием для лучшей теплоизоляции пакета.- Толщина пакета: 6 мм/16 мм/4+4 мм (30 мм).
- Теплопроводность UG: 1,12 Вт/м2.
- Набор лент для изоляции уплотнений. Набор монтажного клея для обработки уплотнителя.
- Набор жестяных отделочных деталей с уплотнительной гидроизоляцией.
- Материалы для изоляции швов.
- Полный монтажный комплект и документация для сборки фасада.
- Маркировка всех элементов и специальная стеклянная упаковка.
Стеклянные панели TRIPLEX | 6 мм стекло – 16 мм ARGON90% – 6 мм стекло – 16 мм ARGON90% – 44,1 EN2PLUS ламинированные
Треугольные окна стеклянные ламинированные пакетные детали для угловых крыш стеклянных фасадов. Внешнее стекло закаленное, термо-рамка имеет высокую влагостойкость, внутренние 2 слоя стекла ламинированные, безопасное стекло. Стеклопакет с термопокрытием для лучшей теплоизоляции пакета. Теплопроводность UG: 0,5-0,8 Вт/м2.- Толщина пакета: 6 мм/16 мм/6 мм/16 мм/4+4 мм (50 мм).
- Теплопроводность UG: 0,7 Вт/м2.
- Набор лент для изоляции уплотнений. Набор монтажного клея для обработки уплотнителя.
- Набор жестяных отделочных деталей с уплотнительной гидроизоляцией.
- Материалы для изоляции швов.
- Полный монтажный комплект и документация для сборки фасада.
- Маркировка всех элементов и специальная стеклянная упаковка.
О СТЕКЛОПАКЕТАХ :
-
Двустворчатая алюминиевая дверь класса ЛЮКС 2100×1800 мм.
Вход в дом с козырьком и тамбуром. Двустворчатые двери LUX CLASS ALU. Главное преимущество дверей из 85-миллиметрового профиля ALU – отличная теплоизоляция. Они устойчивы к повреждениям и защищают дом от взломщиков.
- Алюминиевые двери оснащены многоточечным замком безопасности.
- Они сильные и надежные.
- Алюминиевые двери поставляются с пакетом остекления,
- Он имеет очень простое обслуживание.
-
Деревянная текстура из полиэстера
- Отличная атмосферостойкость, гарантия 15 лет для наружного применения, 10 лет для внутреннего.
- Супер прочность пилинга
- Хорошие показатели морозостойкости
- Отличная плоскостность и гладкость поверхности
- Высокая устойчивость к атмосферным воздействиям, коррозии, загрязняющим веществам
- Ровное покрытие, различные цвета
- Отличная ударопрочность
- Легкий вес (60% от веса алюминиевой панели и 30% от веса стальной панели) и простота обработки)
- Простота в обслуживании

































